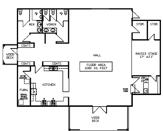
Some of the hall amenities include: The building is 2561 square feet and has a seating capacity of 100. Tile dance floor, stage, AV system with screen, projector, portable speaker and microphone, full kitchen with 2 electric ranges, commercial double door fridge, freezer, cooking and serving utensils, Commercial Jet-Tech hot water sanitizer/dishwasher.
Upcoming Events
Events are managed by the venue owner.
Please login to claim this venue.
